3階は現在募集がありません
茅場町2丁目ビル 3階
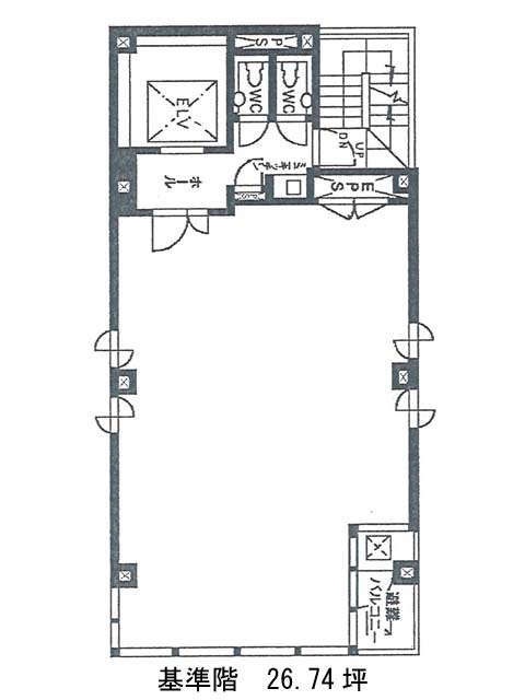
物件概要
茅場町2丁目ビルのテナント募集中区画
現在、空室がございません。
アクセス
茅場町2丁目ビルの物件情報
茅場町2丁目ビル(中央区日本橋茅場町)は茅場町駅(2番出口)から徒歩2分の賃貸オフィスです。茅場町2丁目ビルは茅場町駅(2番出口)の他に八丁堀駅(A5番出口)徒歩5分、日本橋駅(D1番出口)徒歩8分で利用も可能です。

