茅場町2丁目ビルのテナント募集中区画
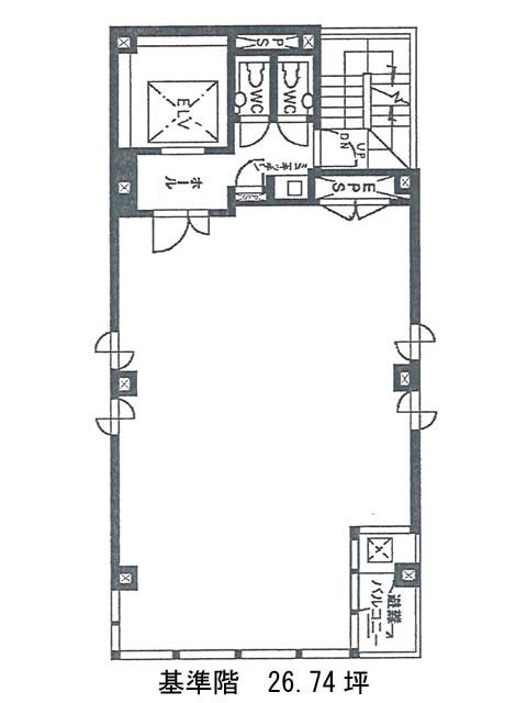
| 階数 | 面積 | 賃料(共益費含む) | 保証金 | 入居可能日 | 検討リスト | 詳細 |
|---|---|---|---|---|---|---|
| 4 | 26.74坪 | 544,159円/月(20,350円/坪) | 481万円 | 2026年7月上旬 | ||
| 8 | 26.74坪 | 544,159円/月(20,350円/坪) | 481万円 | 2026年5月上旬 |
…新着物件
茅場町2丁目ビルのアクセス
茅場町2丁目ビルの物件情報
茅場町2丁目ビル(中央区日本橋茅場町)は茅場町駅(2番出口)から徒歩2分の賃貸オフィスです。茅場町2丁目ビルは茅場町駅(2番出口)の他に八丁堀駅(A5番出口)徒歩5分、日本橋駅(D1番出口)徒歩8分で利用も可能です。

