大湯ビルのテナント募集中区画
| 階数 | 面積 | 賃料(共益費含む) | 保証金 | 入居可能日 | 検討リスト | 詳細 |
|---|---|---|---|---|---|---|
| 地下1 | 43.00坪 | 1,087,900円/月(25,300円/坪) | 516万円 | 即 | ||
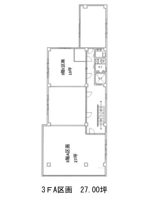
| 3 | 27.00坪 | 534,600円/月(19,800円/坪) | 243万円 | 相談 |
…新着物件
アクセス
大湯ビルの物件情報
大湯ビル(中央区日本橋茅場町)は茅場町駅(5番出口)から徒歩2分の賃貸オフィスです。茅場町駅からすぐの利便性に優れた立地。複数の出口が使えるため、日々の通勤や来客時にもスムーズな導線が確保できます。東京メトロ日比谷線・東西線が利用でき、八丁堀駅や日本橋駅方面へのアクセスも快適です。
1階に入居している薬局は視認性が高く、来訪者にとってもわかりやすい目印に。周辺にはコンビニや飲食店、郵便局も揃っており、働くうえでの細やかな利便性をしっかりカバーしています。
区画は10坪台から40坪台までと幅広く、コンパクトオフィスやサテライト拠点、分室利用にも対応可能。必要な広さに応じて柔軟に選べるのもこの物件の魅力です。専有面積が限られていても、立地と周辺環境の良さで「働きやすさ」を実感できる一棟です。大湯ビルは茅場町駅(5番出口)の他に八丁堀駅(A5番出口)徒歩6分、日本橋駅(D1番出口)徒歩7分で利用も可能です。

