4階は現在募集がありません
1フロア募集区画あり

茅場町偕成ビル 4階

前の写真 次の写真

物件概要

物件番号

646-00168-40

物件名

茅場町偕成ビル

所在地

面積

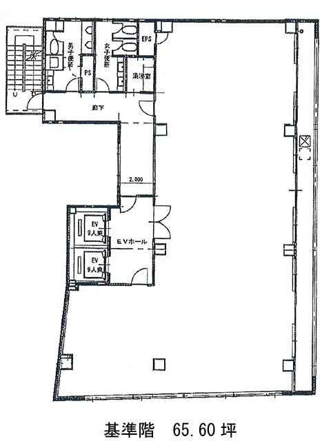
65.60坪

賃料(共益費含)


入居日

募集終了

保証金

礼金

更新料

償却費

竣工

2009年3月

構造

S造

規模

地上9階

トイレ

男女別

空調

個別空調

エレベーター

セキュリティ

駐車場

耐震

新耐震基準

基準階天井高

2600mm

空室延床面積

67.97坪

最寄駅

情報更新日

2026/01/15

茅場町偕成ビルのテナント募集中区画

階数 面積 賃料(共益費含む) 保証金 入居可能日 検討リスト 詳細
8 67.97坪 1,719,641円/月(25,300円/坪) 1,590万円 2026年1月中旬
…新着物件

アクセス

茅場町偕成ビルの物件情報

茅場町偕成ビル(中央区日本橋茅場町)は茅場町駅(2番出口)から徒歩3分の賃貸オフィスです。
竣工2009年の物件ということもあり、建物自体が比較的綺麗です。外観は全体的に淡いグレーを基調としており、とてもシンプルな構造になっております。エントランスホールやエレベーターホールは白とシルバーをベースとしており、スタイリッシュな空間に仕上がっております。また周辺には、コンビニや飲食店などが複数あるためとても利便性が高いです。ビル内のトイレは男女別となっており、駐車場もあるため、社用車を使う場合も便利です。そして光ファイバーも引き込み済みのため、設備面も充実しております。
茅場町偕成ビルは茅場町駅(2番出口)の他に八丁堀駅(A5番出口)徒歩6分、日本橋駅(D1番出口)徒歩7分で利用も可能です。

近隣のエリア・駅から探す