6階は現在募集がありません
1フロア募集区画あり

茅場町EKKビル 6階

前の写真 次の写真

物件概要

物件番号

646-00096-60

物件名

茅場町EKKビル

所在地

面積

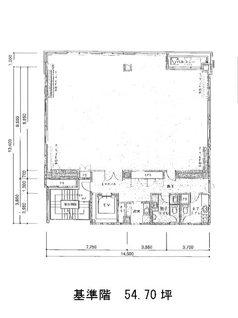
54.70坪

賃料(共益費含)


入居日

募集終了

保証金

礼金

更新料

償却費

竣工

2002年3月

構造

S造

規模

地上7階

トイレ

男女別

空調

個別空調

エレベーター

セキュリティ

駐車場

耐震

新耐震基準

基準階天井高

2700mm

空室延床面積

50.00坪

最寄駅

情報更新日

2026/04/08

茅場町EKKビルのテナント募集中区画

階数 面積 賃料(共益費含む) 保証金 入居可能日 検討リスト 詳細
4 50.00坪 応相談(応相談) 応相談
…新着物件

茅場町EKKビルのアクセス

茅場町EKKビルの物件情報

茅場町EKKビル(中央区日本橋茅場町)は茅場町駅(2番出口)から徒歩4分の賃貸オフィスです。
竣工2002年の物件ということもあり、建物自体が比較的綺麗です。外観は全体的に赤茶をベースとした大理石とタイルを使用したシンプルな構造になっております。周辺には、コンビニや飲食店、郵便局などが複数あるためとても利便性が高いです。またビルの1Fにも飲食店が入っているため、休憩時などに活用しやすいでしょう。ビル内のトイレは男女別となっており、駐車場もあるため、社用車を使う場合も便利です。そして室内にはバルコニーも付いているため、リラックスしたいときに活用するといいでしょう。
茅場町EKKビルは茅場町駅(2番出口)の他に八丁堀駅(A5番出口)徒歩5分、日本橋駅(D1番出口)徒歩7分で利用も可能です。

近隣のエリア・駅から探す