茅場町EKKビルのテナント募集中区画
| 階数 | 面積 | 賃料(共益費含む) | 保証金 | 入居可能日 | 検討リスト | 詳細 |
|---|---|---|---|---|---|---|
| 4 | 50.00坪 | 応相談(応相談) | 応相談 | 即 |
…新着物件
アクセス
茅場町EKKビルの物件情報
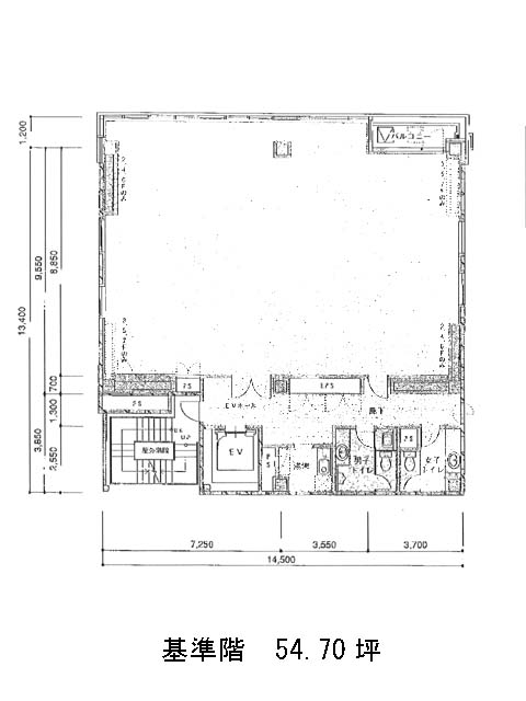
茅場町EKKビル(中央区日本橋茅場町)は茅場町駅(2番出口)から徒歩4分の賃貸オフィスです。竣工2002年の物件ということもあり、建物自体が比較的綺麗です。外観は全体的に赤茶をベースとした大理石とタイルを使用したシンプルな構造になっております。周辺には、コンビニや飲食店、郵便局などが複数あるためとても利便性が高いです。またビルの1Fにも飲食店が入っているため、休憩時などに活用しやすいでしょう。ビル内のトイレは男女別となっており、駐車場もあるため、社用車を使う場合も便利です。そして室内にはバルコニーも付いているため、リラックスしたいときに活用するといいでしょう。茅場町EKKビルは茅場町駅(2番出口)の他に八丁堀駅(A5番出口)徒歩5分、日本橋駅(D1番出口)徒歩7分で利用も可能です。

