日本橋山大ビル 3階新着
物件概要
物件番号
649-00050-30物件名
日本橋山大ビル所在地
- 東京都中央区日本橋小舟町6-3
- アクセスマップ
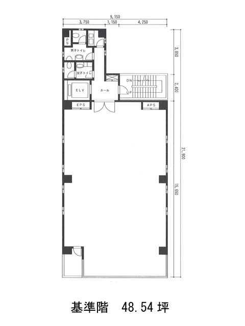
面積
48.54坪賃料(共益費含)
月額800,910円(16,500円/坪)
入居日
2026年3月上旬保証金
7,281,000円礼金
なし更新料
なし償却費
なし竣工
1991年2月構造
S造規模
地上8階/地下1階トイレ
男女別空調
個別空調エレベーター
有セキュリティ
有駐車場
有耐震
新耐震基準基準階天井高
2600mm空室延床面積
48.54坪情報更新日
2026/01/28日本橋山大ビルのテナント募集中区画
| 階数 | 面積 | 賃料(共益費含む) | 保証金 | 入居可能日 | 検討リスト | 詳細 |
|---|---|---|---|---|---|---|
| 3 | 48.54坪 | 800,910円/月(16,500円/坪) | 728万円 | 2026年3月上旬 |
…新着物件
アクセス
日本橋山大ビルの物件情報
日本橋山大ビル(中央区日本橋小舟町)は新日本橋駅(5番出口)から徒歩5分の賃貸オフィスです。石材とガラスが絶妙に調和した外観が印象的なこちらの物件。エントランスへと続く階段が、重厚感と存在感を引き立てています。貸室は整形無柱のすっきりとした空間で、OAフロアも完備。レイアウトの自由度が高く、業種を問わず柔軟に活用できそうです。
機械警備や駐車場といった基本設備も整っており、周辺は落ち着いたオフィス街。静かな環境で腰を据えて働きたい企業にとって、安心感のある選択肢になりそうです。日本橋山大ビルは新日本橋駅(5番出口)の他に三越前駅(A4番出口)徒歩7分、小伝馬町駅(3番出口)徒歩7分で利用も可能です。

