日本橋山大ビルのテナント募集中区画
| 階数 | 面積 | 賃料(共益費含む) | 保証金 | 入居可能日 | 検討リスト | 詳細 |
|---|---|---|---|---|---|---|
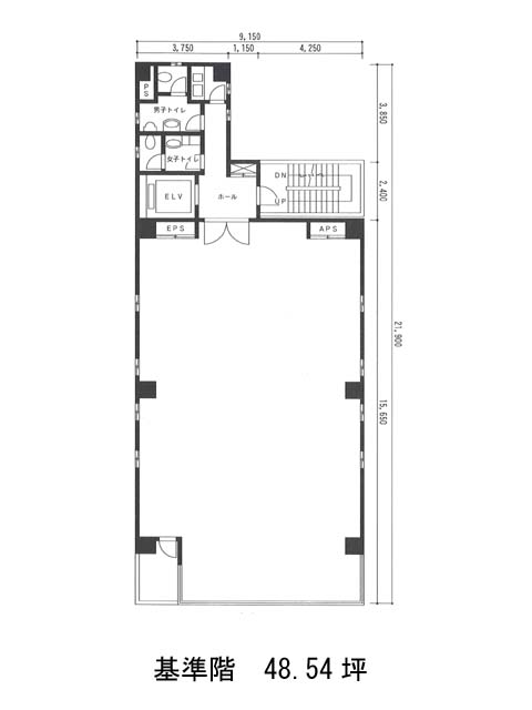
| 3 | 48.54坪 | 800,910円/月(16,500円/坪) | 728万円 | 即 |
…新着物件
日本橋山大ビルのアクセス
日本橋山大ビルの物件情報
日本橋山大ビル(中央区日本橋小舟町)は新日本橋駅(5番出口)から徒歩5分の賃貸オフィスです。石材とガラスが絶妙に調和した外観が印象的なこちらの物件。エントランスへと続く階段が、重厚感と存在感を引き立てています。貸室は整形無柱のすっきりとした空間で、OAフロアも完備。レイアウトの自由度が高く、業種を問わず柔軟に活用できそうです。
機械警備や駐車場といった基本設備も整っており、周辺は落ち着いたオフィス街。静かな環境で腰を据えて働きたい企業にとって、安心感のある選択肢になりそうです。日本橋山大ビルは新日本橋駅(5番出口)の他に三越前駅(A4番出口)徒歩7分、小伝馬町駅(3番出口)徒歩7分で利用も可能です。

