11階は現在募集がありません
1フロア募集区画あり
アソルティ小伝馬町Liens 11階
物件概要
物件番号
650-00109-150物件名
アソルティ小伝馬町Liens所在地
- 東京都中央区日本橋小伝馬町14-10
- アクセスマップ
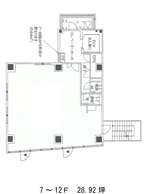
面積
28.92坪賃料(共益費含)
−入居日
募集終了保証金
−礼金
−更新料
−償却費
−竣工
2009年8月構造
RC規模
地上12階/地下1階トイレ
男女別空調
個別空調エレベーター
有セキュリティ
有駐車場
有耐震
新耐震基準基準階天井高
2600-3000mm空室延床面積
20.55坪情報更新日
2025/11/26アソルティ小伝馬町Liensのテナント募集中区画
| 階数 | 面積 | 賃料(共益費含む) | 保証金 | 入居可能日 | 検討リスト | 詳細 |
|---|---|---|---|---|---|---|
| 2 | 20.55坪 | 542,520円/月(26,400円/坪) | 197万円 | 即 |
…新着物件
アソルティ小伝馬町Liensのアクセス
アソルティ小伝馬町Liensの物件情報
アソルティ小伝馬町Liens(中央区日本橋小伝馬町)は馬喰町駅(2番出口)から徒歩2分の賃貸オフィスです。江戸通り沿いに建つ、地上12階・地下1階建てのビルです。2009年8月竣工の比較的新しいビルです。基準階はL字型のフロアが2部屋に分割されています。20.55坪の長方形の間取りと、25.39坪の正方形に近い間取りです。どちらの部屋も、柱が邪魔をしない配置で床がフリーアクセスなので、レイアウトしやすくなっています。共用部に男女別トイレが設置されています。アソルティ小伝馬町Liensは馬喰町駅(2番出口)の他に小伝馬町駅(1番出口)徒歩3分、馬喰横山駅(A1番出口)徒歩4分で利用も可能です。

