T-PLUS日本橋小伝馬町のテナント募集中区画
| 階数 | 面積 | 賃料(共益費含む) | 保証金 | 入居可能日 | 検討リスト | 詳細 |
|---|---|---|---|---|---|---|
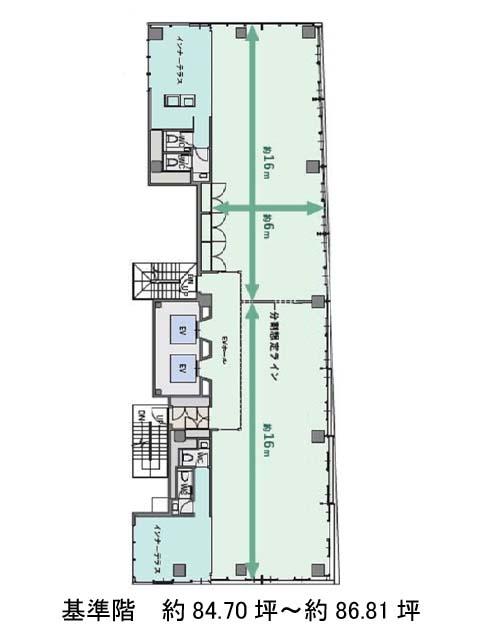
| 3 | 85.60坪 | 応相談(応相談) | 応相談 | 2026年5月上旬 | ||
| 4 | 41.13坪 | 応相談(応相談) | 応相談 | 即 |
…新着物件
アクセス
T-PLUS日本橋小伝馬町の物件情報
T-PLUS日本橋小伝馬町(中央区日本橋小伝馬町)は馬喰町駅(2番出口)から徒歩2分の賃貸オフィスです。竣工2022年の物件ということもあり、建物自体が綺麗です。外観は全体的に白を基調とした中に緑を感じられる造りになっており、とても清潔感があって明るい印象があります。また外壁や屋上には植栽を設けているため、ビル全体の空気が新鮮でしょう。周辺には、コンビニや飲食店などが複数あり利便性が高いです。ビルの1Fにも飲食店が入っているため、休憩時などに活用しやすいでしょう。ビル内のトイレは男女別となっており、駐車場もあるため、社用車を使う場合も便利です。T-PLUS日本橋小伝馬町は馬喰町駅(2番出口)の他に小伝馬町駅(出口)徒歩4分、馬喰横山駅(A1番出口)徒歩4分で利用も可能です。

