6階は現在募集がありません
2フロア募集区画あり

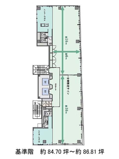
T-PLUS日本橋小伝馬町 6階

前の写真 次の写真

物件概要

物件番号

650-00129-5

物件名

T-PLUS日本橋小伝馬町

所在地

面積

86.51坪

賃料(共益費含)


入居日

募集終了

保証金

礼金

更新料

償却費

竣工

2022年4月

構造

S造

規模

地上9階

トイレ

男女別

空調

個別空調

エレベーター

セキュリティ

駐車場

耐震

新耐震基準

基準階天井高

空室延床面積

126.73坪

最寄駅

情報更新日

2026/01/14

T-PLUS日本橋小伝馬町のテナント募集中区画

階数 面積 賃料(共益費含む) 保証金 入居可能日 検討リスト 詳細
3 85.60坪 応相談(応相談) 応相談 2026年5月上旬
4 41.13坪 応相談(応相談) 応相談
…新着物件

アクセス

T-PLUS日本橋小伝馬町の物件情報

T-PLUS日本橋小伝馬町(中央区日本橋小伝馬町)は馬喰町駅(2番出口)から徒歩2分の賃貸オフィスです。
竣工2022年の物件ということもあり、建物自体が綺麗です。外観は全体的に白を基調とした中に緑を感じられる造りになっており、とても清潔感があって明るい印象があります。また外壁や屋上には植栽を設けているため、ビル全体の空気が新鮮でしょう。周辺には、コンビニや飲食店などが複数あり利便性が高いです。ビルの1Fにも飲食店が入っているため、休憩時などに活用しやすいでしょう。ビル内のトイレは男女別となっており、駐車場もあるため、社用車を使う場合も便利です。
T-PLUS日本橋小伝馬町は馬喰町駅(2番出口)の他に小伝馬町駅(出口)徒歩4分、馬喰横山駅(A1番出口)徒歩4分で利用も可能です。

近隣のエリア・駅から探す