EDGE小伝馬町ビル 5階 501B
物件概要
物件番号
650-00027-105物件名
EDGE小伝馬町ビル所在地
- 東京都中央区日本橋小伝馬町15-18
- アクセスマップ
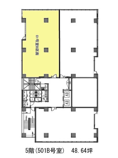
面積
48.64坪賃料(共益費含)
:応相談応相談
入居日
2026年1月上旬保証金
応相談礼金
なし更新料
なし償却費
なし竣工
1983年6月構造
SRC規模
地上9階/地下1階トイレ
男女別空調
個別空調エレベーター
有セキュリティ
有駐車場
有耐震
新耐震基準基準階天井高
2450mm空室延床面積
97.28坪情報更新日
2025/11/19EDGE小伝馬町ビルのテナント募集中区画
| 階数 | 面積 | 賃料(共益費含む) | 保証金 | 入居可能日 | 検討リスト | 詳細 |
|---|---|---|---|---|---|---|
| 5 | 48.64坪 | 応相談(応相談) | 応相談 | 2026年1月上旬 | ||
| 5 | 48.64坪 | 応相談(応相談) | 応相談 | 2026年1月上旬 |
…新着物件
アクセス
EDGE小伝馬町ビルの物件情報
EDGE小伝馬町ビル(中央区日本橋小伝馬町)は馬喰町駅(2番出口)から徒歩3分の賃貸オフィスです。外観は全体的にシックな色合いをしており、とてもデザイン性が高く高級感を感じられる建物です。エントランスホールやエレベーターホールも広々としており、オシャレで落ち着いた空間となっております。周辺には、コンビニや飲食店、郵便局などが複数あるため利便性が高く、ビルの1Fにも飲食店が入っているため、休憩時などに活用しやすいでしょう。ビル内にはOAフロアが備えられており、トイレは男女別となっております。EDGE小伝馬町ビルは馬喰町駅(2番出口)の他に小伝馬町駅(2番出口)徒歩3分、馬喰横山駅(A1番出口)徒歩5分で利用も可能です。

