Grandir 日本橋小伝馬町 6階
物件概要
物件番号
650-00036-60物件名
Grandir 日本橋小伝馬町所在地
- 東京都中央区日本橋小伝馬町18-1
- アクセスマップ
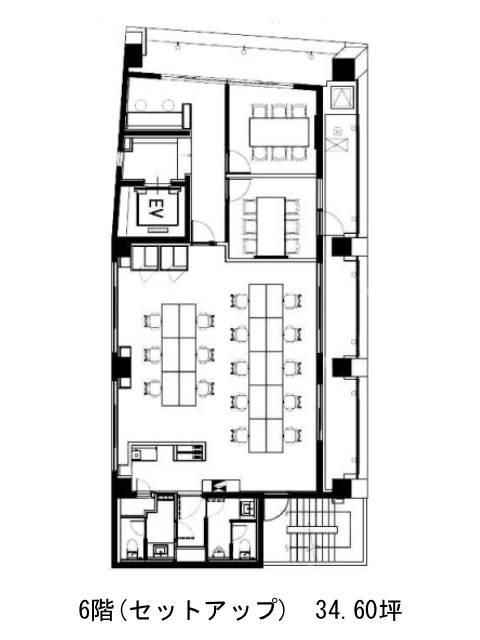
面積
34.60坪賃料(共益費含)
月額913,440円(26,400円/坪)
入居日
2026年3月下旬保証金
4,982,400円礼金
なし更新料
なし償却費
なし竣工
1987年11月構造
RC規模
地上7階/地下1階トイレ
男女別空調
個別空調エレベーター
有セキュリティ
有駐車場
無耐震
新耐震基準基準階天井高
2460mm空室延床面積
123.28坪情報更新日
2026/02/26Grandir 日本橋小伝馬町のテナント募集中区画
| 階数 | 面積 | 賃料(共益費含む) | 保証金 | 入居可能日 | 検討リスト | 詳細 |
|---|---|---|---|---|---|---|
| 2 | 44.34坪 | 1,170,576円/月(26,400円/坪) | 638万円 | 2026年3月上旬 | ||
| 5 | 44.34坪 | 1,170,576円/月(26,400円/坪) | 638万円 | 即 | ||
| 6 | 34.60坪 | 913,440円/月(26,400円/坪) | 498万円 | 2026年3月下旬 |
…新着物件
Grandir 日本橋小伝馬町のアクセス
Grandir 日本橋小伝馬町の物件情報
Grandir 日本橋小伝馬町(中央区日本橋小伝馬町)は小伝馬町駅(出口1)から徒歩3分の賃貸オフィスです。江戸通りを三本北へ入った角地に建つ、地上7階・地下1階建てのビルです。交通量の少ない通りに面していて、落ち着いた環境です。基準階は43.05坪の長方形の間取りで、無柱空間とフリーアクセスの床で、レイアウトしやすくなっています。室内に給湯設備と男女別トイレが設置されています。地階には行列ができる飲食店があります。Grandir 日本橋小伝馬町は小伝馬町駅(出口1)の他に馬喰町駅(2番出口)徒歩5分、馬喰横山駅(A1番出口)徒歩7分で利用も可能です。

