古賀オールビルのテナント募集中区画
| 階数 | 面積 | 賃料(共益費含む) | 保証金 | 入居可能日 | 検討リスト | 詳細 |
|---|---|---|---|---|---|---|
| 3 | 110.07坪 | 1,937,232円/月(17,600円/坪) | 1,056万円 | 即 |
…新着物件
古賀オールビルのアクセス
古賀オールビルの物件情報
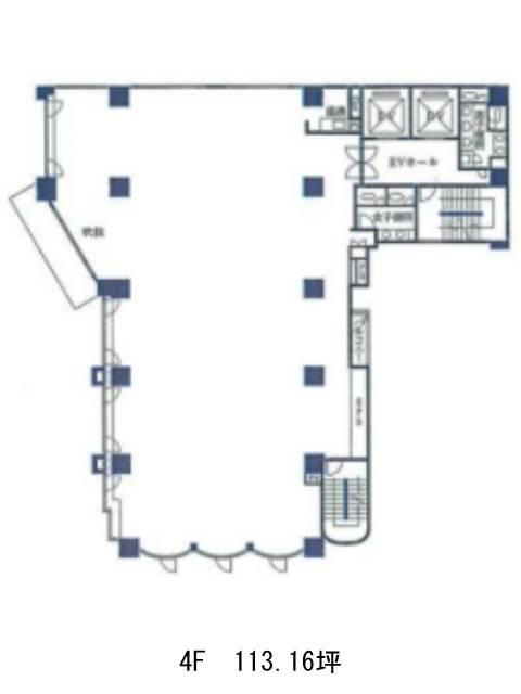
古賀オールビル(中央区日本橋小伝馬町)は小伝馬町駅(出口2)から徒歩2分の賃貸オフィスです。水天宮通り沿いに建つ地上10階地下1階建のビルです。黒い壁面とミラーガラスを組み合わせたデザイン性のある外観をしています。エントランスは大きなアーチ状で特徴があり、又1階には銀行の出張所が入り、目印となるでしょう。EV2基・非常階段2箇所・給湯室・執務室外の男女別トイレがあります。個別空調システムを導入し、床は配線の容易なOAフロアとなっています。周囲は中層階のオフィスビルが建ち並ぶエリアです。古賀オールビルは小伝馬町駅(出口2)の他に馬喰町駅(2番出口)徒歩6分、新日本橋駅(8番出口)徒歩7分で利用も可能です。

