エムジー小伝馬町のテナント募集中区画
| 階数 | 面積 | 賃料(共益費含む) | 保証金 | 入居可能日 | 検討リスト | 詳細 |
|---|---|---|---|---|---|---|
| 地下1 | 24.71坪 | 366,943円/月(14,850円/坪) | 155万円 | 即 | ||
| 4 | 27.38坪 | 481,888円/月(17,600円/坪) | 205万円 | 2026年7月下旬 | ||
| 7 | 27.38坪 | 481,888円/月(17,600円/坪) | 205万円 | 2026年3月中旬 |
…新着物件
エムジー小伝馬町のアクセス
エムジー小伝馬町の物件情報
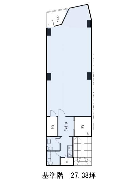
エムジー小伝馬町(中央区日本橋小伝馬町)は小伝馬町駅(出口1)から徒歩3分の賃貸オフィスです。江戸通りを北へ2本入ったところにある、地上8階・地下1階建てのビルです。グレーの外壁にバルコニーの赤い手すりが映える、洒落た外観です。基準階は27.38坪の長方形の間取りで、無柱空間とフリーアクセスの床でレイアウトしやすくなっています。室内に給湯設備と男女別トイレが設置されています。近くにある十思公園は、伝馬町牢屋敷跡にできた公園です。吉田松陰がここで最期を迎えたという歴史のある地です。エムジー小伝馬町は小伝馬町駅(出口1)の他に馬喰町駅(2番出口)徒歩5分、馬喰横山駅(A1番出口)徒歩7分で利用も可能です。

