小網町プロサイドビル 10階
物件概要
物件番号
651-00044-100物件名
小網町プロサイドビル所在地
- 東京都中央区日本橋小網町18-11
- アクセスマップ
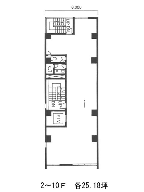
面積
25.18坪賃料(共益費含)
月額363,000円(14,416円/坪)
入居日
相談保証金
1,650,096円礼金
なし更新料
新1ケ月償却費
2ケ月竣工
1970年12月構造
SRC規模
地上10階/地下1階トイレ
男女別空調
個別空調エレベーター
有セキュリティ
駐車場
無耐震
旧耐震基準基準階天井高
空室延床面積
25.18坪情報更新日
2025/12/05小網町プロサイドビルのテナント募集中区画
| 階数 | 面積 | 賃料(共益費含む) | 保証金 | 入居可能日 | 検討リスト | 詳細 |
|---|---|---|---|---|---|---|
| 10 | 25.18坪 | 363,000円/月(14,416円/坪) | 165万円 | 相談 |
…新着物件
小網町プロサイドビルのアクセス
小網町プロサイドビルの物件情報
小網町プロサイドビル(中央区日本橋小網町)は人形町駅(A6番出口)から徒歩4分の賃貸オフィスです。小網町プロサイドビルは人形町駅(A6番出口)の他に三越前駅(B6番出口)徒歩6分、日本橋駅(D2番出口)徒歩8分で利用も可能です。

