8階は現在募集がありません
2フロア募集区画あり

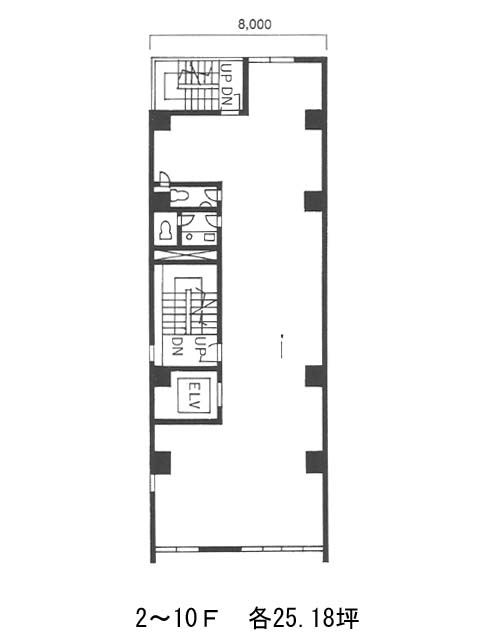
小網町プロサイドビル 8階

前の写真 次の写真

物件概要

物件番号

651-00044-80

物件名

小網町プロサイドビル

所在地

面積

25.18坪

賃料(共益費含)


入居日

募集終了

保証金

礼金

更新料

償却費

竣工

1970年12月

構造

SRC

規模

地上10階/地下1階

トイレ

男女別

空調

個別空調

エレベーター

セキュリティ

駐車場

耐震

旧耐震基準

基準階天井高

空室延床面積

50.36坪

最寄駅

情報更新日

2026/04/10

小網町プロサイドビルのテナント募集中区画

階数 面積 賃料(共益費含む) 保証金 入居可能日 検討リスト 詳細
6 25.18坪 363,038円/月(14,417円/坪) 165万円
10 25.18坪 363,000円/月(14,416円/坪) 165万円 相談
…新着物件

小網町プロサイドビルのアクセス

小網町プロサイドビルの物件情報

小網町プロサイドビル(中央区日本橋小網町)は人形町駅(A6番出口)から徒歩4分の賃貸オフィスです。
小網町プロサイドビルは人形町駅(A6番出口)の他に三越前駅(B6番出口)徒歩6分、日本橋駅(D2番出口)徒歩8分で利用も可能です。

近隣のエリア・駅から探す