ラ・ベール日本橋ビル 8階
物件概要
物件番号
651-00086-20物件名
ラ・ベール日本橋ビル所在地
- 東京都中央区日本橋小網町12-5
- アクセスマップ
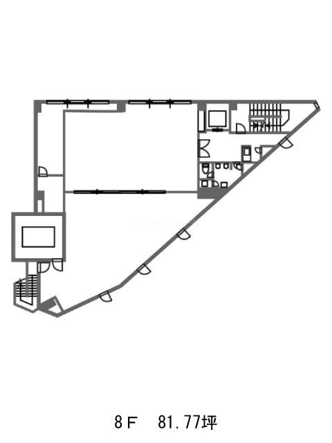
面積
50.43坪賃料(共益費含)
月額943,041円(18,700円/坪)
入居日
即保証金
10,287,720円礼金
なし更新料
なし償却費
1ケ月竣工
1983年2月構造
SRC規模
地上8階/地下1階トイレ
男女別空調
個別空調エレベーター
有セキュリティ
駐車場
有耐震
新耐震基準基準階天井高
空室延床面積
1157.34坪情報更新日
2026/03/03ラ・ベール日本橋ビルのテナント募集中区画
…新着物件
ラ・ベール日本橋ビルのアクセス
ラ・ベール日本橋ビルの物件情報
ラ・ベール日本橋ビル(中央区日本橋小網町)は人形町駅(A2番出口)から徒歩5分の賃貸オフィスです。全8フロア・約616坪の一棟貸し物件。白と黒のラインが交互に走るファサードは、通りからもよく目に留まり、視認性・印象ともに良好です。壁面には石材が用いられ、細部にデザイン性が感じられるつくり。
地下一階には機械式駐車場も備わっており、社用車の運用や来客対応にも対応しやすい環境です。最寄り駅からは徒歩圏内ながら、建物周辺は比較的落ち着いたエリア。1フロアは約82坪で、業態やフェーズに応じてフロアごとの使い分けもできそうですね。分割では得にくい、一体感あるオフィスを実現できるのも、一棟貸しならではの魅力です。ラ・ベール日本橋ビルは人形町駅(A2番出口)の他に水天宮前駅(6番出口)徒歩5分、茅場町駅(7番出口)徒歩6分で利用も可能です。

