高道ビル 4階新着
物件概要
物件番号
652-00249-21物件名
高道ビル所在地
- 東京都中央区日本橋人形町2-15-16
- アクセスマップ
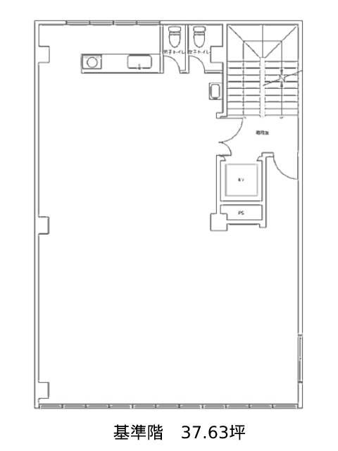
面積
37.63坪賃料(共益費含)
月額496,716円(13,200円/坪)
入居日
2026年6月下旬保証金
2,709,360円礼金
1ケ月更新料
新0.5ケ月償却費
なし竣工
1974年6月構造
RC規模
地上7階トイレ
男女別空調
個別空調エレベーター
有セキュリティ
有駐車場
無耐震
旧耐震基準基準階天井高
空室延床面積
37.63坪情報更新日
2026/04/21高道ビルのテナント募集中区画
| 階数 | 面積 | 賃料(共益費含む) | 保証金 | 入居可能日 | 検討リスト | 詳細 |
|---|---|---|---|---|---|---|
| 4 | 37.63坪 | 496,716円/月(13,200円/坪) | 270万円 | 2026年6月下旬 |
…新着物件
高道ビルのアクセス
高道ビルの物件情報
高道ビル(中央区日本橋人形町)は水天宮前駅(5番出口)から徒歩3分の賃貸オフィスです。高道ビルは水天宮前駅(5番出口)の他に人形町駅(A2番出口)徒歩5分、浜町駅(A2番出口)徒歩7分で利用も可能です。