NSビル 1階
物件概要
物件番号
652-00287-1物件名
NSビル所在地
- 東京都中央区日本橋人形町2-9-5
- アクセスマップ
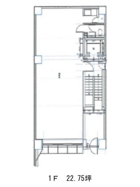
面積
22.75坪賃料(共益費含)
月額450,450円(19,800円/坪)
入居日
相談保証金
2,457,000円礼金
なし更新料
新1ケ月償却費
なし竣工
1986年4月構造
RC規模
地上6階トイレ
男女共用空調
個別空調エレベーター
有セキュリティ
有駐車場
有耐震
新耐震基準基準階天井高
2600mm空室延床面積
22.75坪情報更新日
2026/01/29NSビルのテナント募集中区画
| 階数 | 面積 | 賃料(共益費含む) | 保証金 | 入居可能日 | 検討リスト | 詳細 |
|---|---|---|---|---|---|---|
| 1 | 22.75坪 | 450,450円/月(19,800円/坪) | 245万円 | 相談 |
…新着物件
NSビルのアクセス
NSビルの物件情報
NSビル(中央区日本橋人形町)は人形町駅(A3番出口)から徒歩3分の賃貸オフィスです。NSビルは人形町駅(A3番出口)の他に水天宮前駅(7番出口)徒歩4分、浜町駅(A2番出口)徒歩7分で利用も可能です。

