2階は現在募集がありません
1フロア募集区画あり

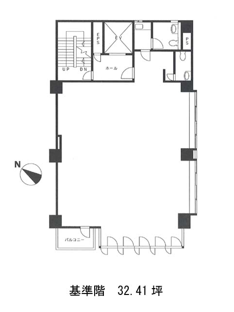
人形町藤和ビル 2階

前の写真 次の写真

物件概要

物件番号

652-00052-10

物件名

人形町藤和ビル

所在地

面積

32.41坪

賃料(共益費含)


入居日

募集終了

保証金

礼金

更新料

償却費

竣工

1984年10月

構造

RC

規模

地上8階

トイレ

男女別

空調

個別空調

エレベーター

セキュリティ

駐車場

耐震

新耐震基準

基準階天井高

空室延床面積

32.41坪

最寄駅

情報更新日

2026/05/21

人形町藤和ビルのテナント募集中区画

階数 面積 賃料(共益費含む) 保証金 入居可能日 検討リスト 詳細
4 32.41坪 460,221円/月(14,201円/坪) 212万円
…新着物件

人形町藤和ビルのアクセス

人形町藤和ビルの物件情報

人形町藤和ビル(中央区日本橋人形町)は水天宮前駅(5番出口)から徒歩3分の賃貸オフィスです。
人形町藤和ビルは水天宮前駅(5番出口)の他に人形町駅(A2番出口)徒歩4分、浜町駅(出口)徒歩7分で利用も可能です。

近隣のエリア・駅から探す