人形町藤和ビル 5階
物件概要
物件番号
652-00052-40物件名
人形町藤和ビル所在地
- 東京都中央区日本橋人形町2-15-3
- アクセスマップ
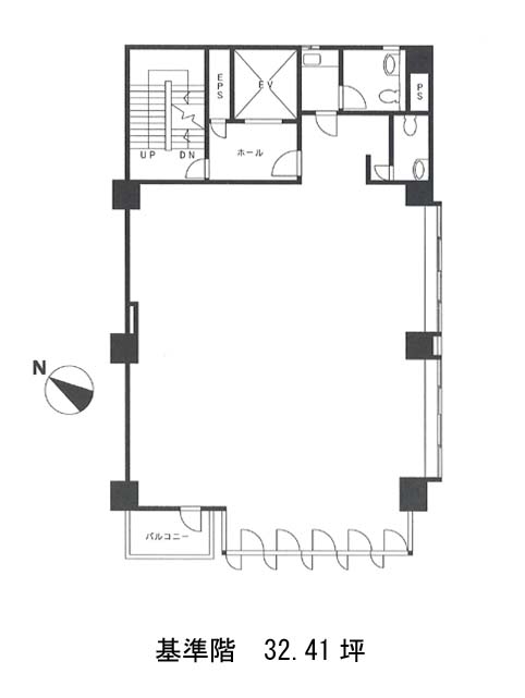
面積
32.41坪賃料(共益費含)
月額427,809円(13,200円/坪)
入居日
即保証金
2,592,800円礼金
なし更新料
なし償却費
なし竣工
1984年10月構造
RC規模
地上8階トイレ
男女別空調
個別空調エレベーター
有セキュリティ
有駐車場
無耐震
新耐震基準基準階天井高
空室延床面積
32.41坪情報更新日
2025/11/26人形町藤和ビルのテナント募集中区画
| 階数 | 面積 | 賃料(共益費含む) | 保証金 | 入居可能日 | 検討リスト | 詳細 |
|---|---|---|---|---|---|---|
| 5 | 32.41坪 | 427,809円/月(13,200円/坪) | 259万円 | 即 |
…新着物件
人形町藤和ビルのアクセス
人形町藤和ビルの物件情報
人形町藤和ビル(中央区日本橋人形町)は水天宮前駅(5番出口)から徒歩3分の賃貸オフィスです。人形町藤和ビルは水天宮前駅(5番出口)の他に人形町駅(A2番出口)徒歩4分、浜町駅(出口)徒歩7分で利用も可能です。

