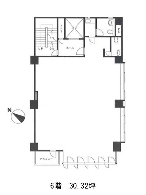
人形町藤和ビルのテナント募集中区画
| 階数 | 面積 | 賃料(共益費含む) | 保証金 | 入居可能日 | 検討リスト | 詳細 |
|---|---|---|---|---|---|---|
| 5 | 32.41坪 | 427,809円/月(13,200円/坪) | 259万円 | 即 |
…新着物件
アクセス
人形町藤和ビルの物件情報
人形町藤和ビル(中央区日本橋人形町)は水天宮前駅(5番出口)から徒歩3分の賃貸オフィスです。人形町藤和ビルは水天宮前駅(5番出口)の他に人形町駅(A2番出口)徒歩4分、浜町駅(出口)徒歩7分で利用も可能です。

