AIC共同ビル人形町のテナント募集中区画
| 階数 | 面積 | 賃料(共益費含む) | 保証金 | 入居可能日 | 検討リスト | 詳細 |
|---|---|---|---|---|---|---|
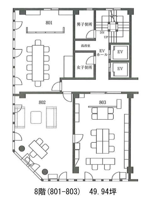
| 4 | 49.94坪 | 824,010円/月(16,500円/坪) | 449万円 | 即 | ||
| 5 | 117.76坪 | 1,943,040円/月(16,500円/坪) | 1,059万円 | 即 |
…新着物件
アクセス
AIC共同ビル人形町の物件情報
AIC共同ビル人形町(中央区日本橋人形町)は人形町駅(A6番出口)から徒歩2分の賃貸オフィスです。交差点の角地に立地しているため、通風良好です。外観は全体的にグレーのタイル張りと石張りで構成され、とても重厚感かつ存在感がある印象となっております。周辺には、コンビニや飲食店、郵便局などが複数あるためとても利便性が高いです。またビルの地下1Fや1Fにもコンビニや飲食店が入っているため、休憩時などに活用しやすいでしょう。ビル内のトイレは男女別となっており、駐車場はありませんが、近くにパーキングがあるため、社用車を使う場合も便利です。AIC共同ビル人形町は人形町駅(A6番出口)の他に水天宮前駅(8番出口)徒歩6分、小伝馬町駅(3番出口)徒歩9分で利用も可能です。

