人形町双葉ビルのテナント募集中区画
| 階数 | 面積 | 賃料(共益費含む) | 保証金 | 入居可能日 | 検討リスト | 詳細 |
|---|---|---|---|---|---|---|
| 3 | 22.79坪 | 426,173円/月(18,700円/坪) | 232万円 | 2026年1月下旬 | ||
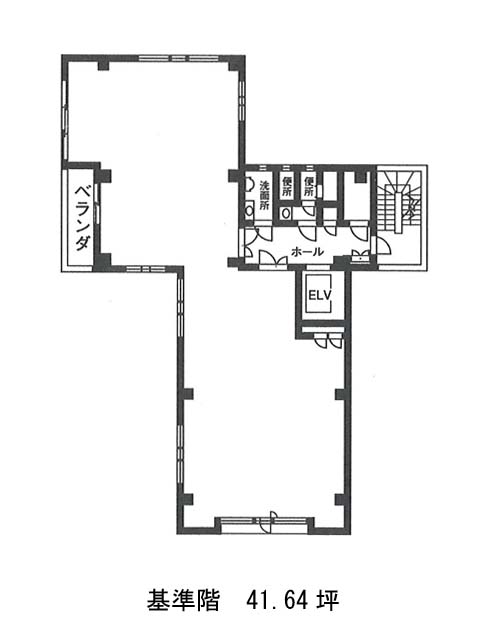
| 4 | 41.64坪 | 687,060円/月(16,500円/坪) | 374万円 | 2026年1月下旬 |
…新着物件
アクセス
人形町双葉ビルの物件情報
人形町双葉ビル(中央区日本橋人形町)は人形町駅(A1番出口)から徒歩2分の賃貸オフィスです。人形町通りを東へ入ったところにある、10階建てのビルです。T字型が変形した間取りのビルで、3方向が通りに面しています。基準階は41.64坪のL字型の間取りです。無柱空間でレイアウトしやすくなっています。共用部に男女別トイレが設置されています。フロア貸しと、フロアを分割して貸し出している部屋があります。空き状況についてはお問い合わせください。近隣に飲食店の多い便利な立地です。人形町双葉ビルは人形町駅(A1番出口)の他に水天宮前駅(7番出口)徒歩3分、浜町駅(A2番出口)徒歩7分で利用も可能です。

