セイショウ日本橋ビルのテナント募集中区画
| 階数 | 面積 | 賃料(共益費含む) | 保証金 | 入居可能日 | 検討リスト | 詳細 |
|---|---|---|---|---|---|---|
| 6 | 101.72坪 | 1,454,596円/月(14,300円/坪) | 1,057万円 | 2025年12月上旬 |
…新着物件
アクセス
セイショウ日本橋ビルの物件情報
セイショウ日本橋ビル(中央区日本橋大伝馬町)は小伝馬町駅(1番出口)から徒歩4分の賃貸オフィスです。シンプルなタイル貼りの外観に、共用部も同系統でまとめられたデザイン。装飾は控えめながら、統一感のある内装は訪れる人に落ち着いた印象を与えてくれます。
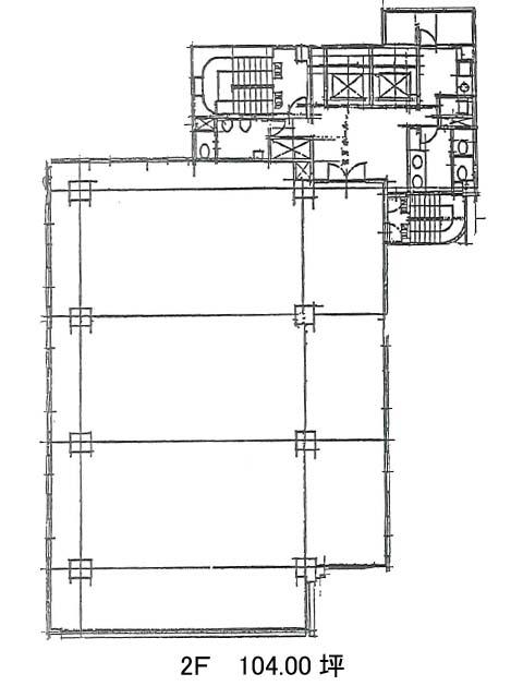
基準階は100坪超の広さがあり、整形で使い勝手の良いオフィス空間。室内には複数本の柱がありますが、間仕切り設計などによってゾーニングしやすく、レイアウト次第で機能性を高めることも可能です。「チームごとにエリアを分けたい」「フリーアドレスと固定席をミックスしたい」など、用途に応じて柔軟に対応できるのは嬉しいポイントですね。
また、水回りは貸室外に配置されているため、執務スペースを効率的に活用したい企業にもおすすめです。
エレベーターは2基設置されており、朝夕の出退勤時や来客対応時でもスムーズな移動が可能。人の流れが滞りにくく、日々のストレスを軽減してくれます。
周辺環境も魅力的で、コンビニや飲食店はもちろん、大手銀行の支店や税務署が至近に揃う便利な立地。とくに税務署の近さは、会計事務所や税理士法人、経理機能を持つ企業などにとって大きなメリットとなるでしょう。セイショウ日本橋ビルは小伝馬町駅(1番出口)の他に馬喰横山駅(A2番出口)徒歩4分、馬喰町駅(1番出口)徒歩5分で利用も可能です。

