4階は現在募集がありません
1フロア募集区画あり
日本橋ライフサイエンスビルディング9 4階
物件概要
物件番号
653-00082-30物件名
日本橋ライフサイエンスビルディング9所在地
- 東京都中央区日本橋大伝馬町12-9
- アクセスマップ
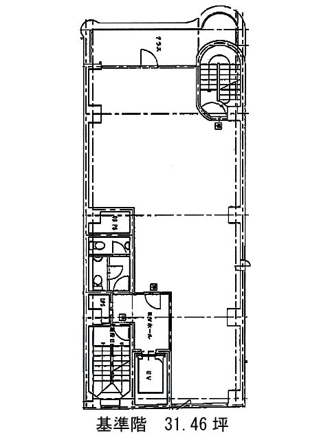
面積
31.46坪賃料(共益費含)
−入居日
募集終了保証金
−礼金
−更新料
−償却費
−竣工
1981年11月構造
SRC規模
地上7階トイレ
不明空調
個別空調エレベーター
有セキュリティ
有駐車場
無耐震
旧耐震基準基準階天井高
2400mm空室延床面積
30.08坪情報更新日
2026/04/02日本橋ライフサイエンスビルディング9のテナント募集中区画
| 階数 | 面積 | 賃料(共益費含む) | 保証金 | 入居可能日 | 検討リスト | 詳細 |
|---|---|---|---|---|---|---|
| 2 | 30.08坪 | 応相談(応相談) | 応相談 | 即 |
…新着物件
日本橋ライフサイエンスビルディング9のアクセス
日本橋ライフサイエンスビルディング9の物件情報
日本橋ライフサイエンスビルディング9(中央区日本橋大伝馬町)は馬喰横山駅(A2番出口)から徒歩3分の賃貸オフィスです。日本橋ライフサイエンスビルディング9は馬喰横山駅(A2番出口)の他に馬喰町駅(1番出口)徒歩4分、東日本橋駅(A4番出口)徒歩5分で利用も可能です。

