日本橋ウッドフィールドのテナント募集中区画
| 階数 | 面積 | 賃料(共益費含む) | 保証金 | 入居可能日 | 検討リスト | 詳細 |
|---|---|---|---|---|---|---|
| 5 | 67.90坪 | 672,210円/月(9,900円/坪) | 460万円 | 相談 |
…新着物件
日本橋ウッドフィールドのアクセス
日本橋ウッドフィールドの物件情報
日本橋ウッドフィールド(中央区日本橋箱崎町)は水天宮前駅(1a番出口)から徒歩3分の賃貸オフィスです。こちらの物件は、穏やかな雰囲気が漂う箱崎町エリアに立地。都心の喧騒から少し離れた落ち着きがありながらも、東京シティエアターミナル(T-CAT)が徒歩圏にあることで、空港アクセスの良さも感じられるロケーションです。出張が多い企業や、遠方からの来客がある業態の方にも相性がよさそうですね。
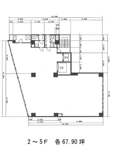
基準階は約68坪。エレベーターから直接室内へアクセスするダイレクトイン仕様。水まわりも室内に集約されており、専有性が高く、フロア全体を一体的に使いたいテナントには好まれる構成です。
室内にはいくつか柱がありますが、ゾーニング次第では空間の分割や用途の切り替えにも活かせそうです。完全な無柱空間とまではいかないものの、ちょっとしたレイアウトの工夫でオリジナリティある空間づくりができる余白があります。
外観はベージュ系タイル張りの落ち着いた印象で、派手すぎず、来訪者に誠実な印象を与えられそうな佇まい。地域に馴染む安定感が魅力です。日本橋ウッドフィールドは水天宮前駅(1a番出口)の他に人形町駅(A2番出口)徒歩9分、茅場町駅(4B番出口)徒歩10分で利用も可能です。

