ONEST箱崎ビル 3階
物件概要
物件番号
656-00042-43物件名
ONEST箱崎ビル所在地
- 東京都中央区日本橋箱崎町31-4
- アクセスマップ
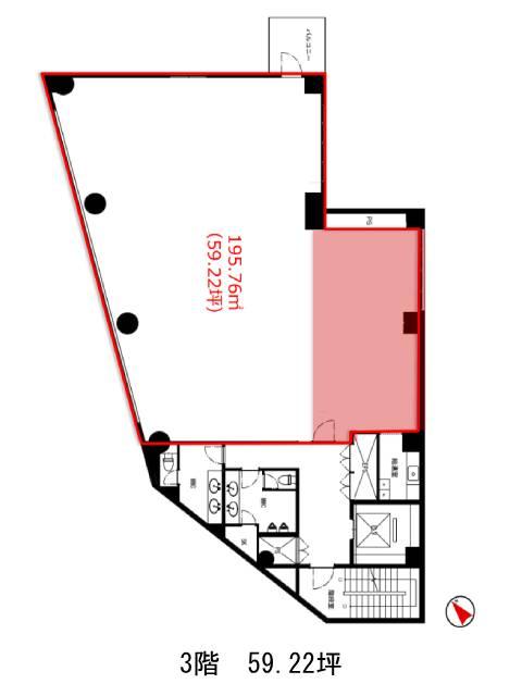
面積
59.22坪賃料(共益費含)
:応相談応相談
入居日
即保証金
応相談礼金
なし更新料
なし償却費
なし竣工
1991年3月構造
SRC規模
地上9階/地下1階トイレ
男女別空調
個別空調エレベーター
有セキュリティ
駐車場
無耐震
新耐震基準基準階天井高
2560mm空室延床面積
118.44坪情報更新日
2025/11/06ONEST箱崎ビルのテナント募集中区画
| 階数 | 面積 | 賃料(共益費含む) | 保証金 | 入居可能日 | 検討リスト | 詳細 |
|---|---|---|---|---|---|---|
| 2 | 59.22坪 | 応相談(応相談) | 応相談 | 即 | ||
| 3 | 59.22坪 | 応相談(応相談) | 応相談 | 即 |
…新着物件
アクセス
ONEST箱崎ビルの物件情報
ONEST箱崎ビル(中央区日本橋箱崎町)は水天宮前駅(1a番出口)から徒歩2分の賃貸オフィスです。外観はすっきりとしたブルーのタイル張り。角地に立地し、道路接地面が広いため、実際の延床面積以上に存在感を感じる外観です。視認性も高く、来訪者にも見つけてもらいやすい立地条件と言えます。
エントランスホールはベージュ系の明るい配色でまとめられ、清潔感が漂う空間に。細やかに手入れされた共用部からも、管理状態の良さがうかがえます。
基準階は約59坪。整形ではない間取りですが、柱はすべて外周部に収められており、室内はすっきりとした印象。OAフロアも完備されているため、レイアウトの自由度を損なわずに活用できます。
また1階には小型スーパーが入っており、ちょっとした買い物にも便利。働く方のちょっとした「助かる!」が、日々の満足感につながっていきそうです。ONEST箱崎ビルは水天宮前駅(1a番出口)の他に人形町駅(A2番出口)徒歩9分、茅場町駅(4B番出口)徒歩10分で利用も可能です。

