ヤマタネ箱崎ビル 4階
物件概要
ヤマタネ箱崎ビルのテナント募集中区画
| 階数 | 面積 | 賃料(共益費含む) | 保証金 | 入居可能日 | 検討リスト | 詳細 |
|---|---|---|---|---|---|---|
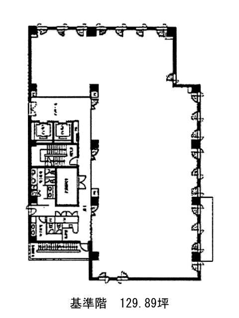
| 4 | 129.89坪 | 応相談(応相談) | 応相談 | 即 | ||
| 5 | 129.89坪 | 応相談(応相談) | 応相談 | 即 |
…新着物件
アクセス
ヤマタネ箱崎ビルの物件情報
ヤマタネ箱崎ビル(中央区日本橋箱崎町)は水天宮前駅(2番出口)から徒歩5分の賃貸オフィスです。重厚感のあるダークグレーの外観がシックな印象の本物件は、中央区日本橋箱崎町エリアに位置します。建物前には街路樹が整然と並び、周辺は静かなオフィス街。落ち着いた雰囲気の中で、集中しやすい執務環境を確保できます。
基準階は約130坪とゆとりある面積で、ゾーニングのしやすさも魅力。L字に近い間取りは、執務スペースのほか会議室や休憩室のレイアウトにも対応しやすく、組織構成に合わせた柔軟な空間設計が可能です。室内はOAフロア仕様で、配線計画がしやすく、足元もすっきり整えられます。柱の位置が比較的外周にまとめられているため、視界もひらけています。
エレベーターは2基あり、混雑緩和にも貢献。来客時や業務の合間でもスムーズに移動できる点は、働きやすさを左右する大事な要素です。さらに、水回りは全て室外に配置されており、執務スペースを無駄なく有効活用できるのも嬉しいポイント。敷地内には駐車場も用意されています。ヤマタネ箱崎ビルは水天宮前駅(2番出口)の他に茅場町駅(4B番出口)徒歩6分、八丁堀駅(A4番出口)徒歩12分で利用も可能です。

