ヤマキビルのテナント募集中区画
| 階数 | 面積 | 賃料(共益費含む) | 保証金 | 入居可能日 | 検討リスト | 詳細 |
|---|---|---|---|---|---|---|
| 7 | 49.91坪 | 687,500円/月(13,775円/坪) | 375万円 | 相談 |
…新着物件
アクセス
ヤマキビルの物件情報
ヤマキビル(中央区日本橋箱崎町)は水天宮前駅(2番出口)から徒歩1分の賃貸オフィスです。最寄駅から徒歩すぐというアクセス性の良さと、落ち着いた外観が印象的なオフィスビル。黄みのある吹付けをベースに、エントランスまわりは黒〜グレー系の石材で仕上げられており、視認性と重厚感を兼ね備えた佇まいです。
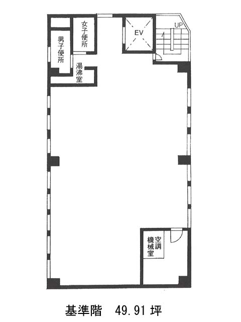
基準階は約50坪、エレベーターからダイレクトに入室できるシンプルな導線設計。水回りもEV前にまとまっているため、室内レイアウトにも無駄が出にくい構造です。床はOAフロアを採用しており、配線まわりもスマートに整えられます。
さらに本物件の近隣には東京シティエアターミナル(T-CAT)があり、空港アクセスがスムーズなうえ、施設内に郵便局も立地。出張や発送業務が多い企業にとって、日々の業務効率を高めてくれる頼もしい環境です。ヤマキビルは水天宮前駅(2番出口)の他に人形町駅(A2番出口)徒歩8分、茅場町駅(4B番出口)徒歩9分で利用も可能です。

