8階は現在募集がありません
1フロア募集区画あり

ヤマキビル 8階

前の写真 次の写真

物件概要

物件番号

656-00046-60

物件名

ヤマキビル

所在地

面積

49.91坪

賃料(共益費含)


入居日

募集終了

保証金

礼金

更新料

償却費

竣工

1981年2月

構造

S造

規模

地上9階/地下1階

トイレ

男女別

空調

個別空調

エレベーター

セキュリティ

駐車場

耐震

旧耐震基準

基準階天井高

空室延床面積

49.91坪

最寄駅

情報更新日

2026/03/12

ヤマキビルのテナント募集中区画

階数 面積 賃料(共益費含む) 保証金 入居可能日 検討リスト 詳細
7 49.91坪 687,500円/月(13,775円/坪) 375万円 相談
…新着物件

ヤマキビルのアクセス

ヤマキビルの物件情報

ヤマキビル(中央区日本橋箱崎町)は水天宮前駅(2番出口)から徒歩1分の賃貸オフィスです。
最寄駅から徒歩すぐというアクセス性の良さと、落ち着いた外観が印象的なオフィスビル。黄みのある吹付けをベースに、エントランスまわりは黒〜グレー系の石材で仕上げられており、視認性と重厚感を兼ね備えた佇まいです。
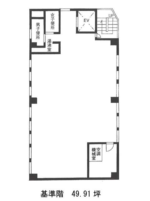
基準階は約50坪、エレベーターからダイレクトに入室できるシンプルな導線設計。水回りもEV前にまとまっているため、室内レイアウトにも無駄が出にくい構造です。床はOAフロアを採用しており、配線まわりもスマートに整えられます。
さらに本物件の近隣には東京シティエアターミナル(T-CAT)があり、空港アクセスがスムーズなうえ、施設内に郵便局も立地。出張や発送業務が多い企業にとって、日々の業務効率を高めてくれる頼もしい環境です。
ヤマキビルは水天宮前駅(2番出口)の他に人形町駅(A2番出口)徒歩8分、茅場町駅(4B番出口)徒歩9分で利用も可能です。

近隣のエリア・駅から探す