ヴェラハイツ日本橋箱崎町のテナント募集中区画
| 階数 | 面積 | 賃料(共益費含む) | 保証金 | 入居可能日 | 検討リスト | 詳細 |
|---|---|---|---|---|---|---|
| 2 | 110.65坪 | 応相談(応相談) | 990万円 | 相談 |
…新着物件
アクセス
ヴェラハイツ日本橋箱崎町の物件情報
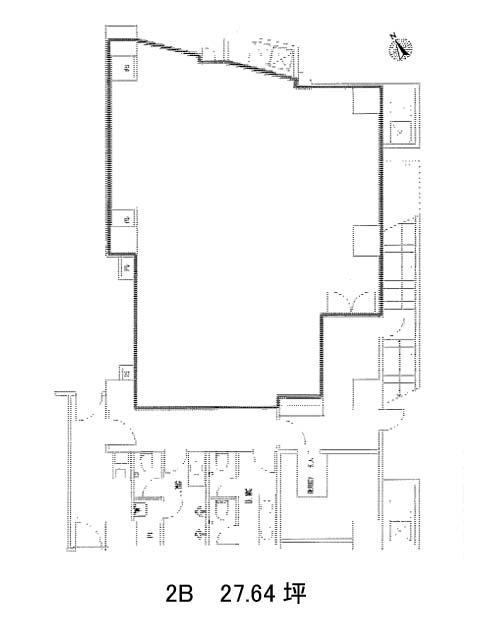
ヴェラハイツ日本橋箱崎町(中央区日本橋箱崎町)は水天宮前駅(2番出口)から徒歩2分の賃貸オフィスです。レンガ調の外観が印象的なマンションタイプの建物ながら、低層階には約110坪の広々とした事務所区画を備えた物件です。駅からのアクセスも良好で、落ち着いた通り沿いに位置しつつ利便性もしっかり確保。
室内はシンプルな構造のため、こだわりの内装を取り入れたおしゃれなオフィスづくりにも柔軟に対応できます。天井や床材などを活かして、デザイン事務所やスタートアップ系のクリエイティブな利用にもおすすめ。用途によっては倉庫利用も相談可能(詳細は都度確認)。
さらに東京シティエアターミナル(T-CAT)も程近く、空港へのアクセスがスムーズなのも嬉しいポイント。空間重視のオフィス選びをしたい方にフィットする、個性ある1棟です。ヴェラハイツ日本橋箱崎町は水天宮前駅(2番出口)の他に人形町駅(A2番出口)徒歩9分、茅場町駅(4B番出口)徒歩10分で利用も可能です。

