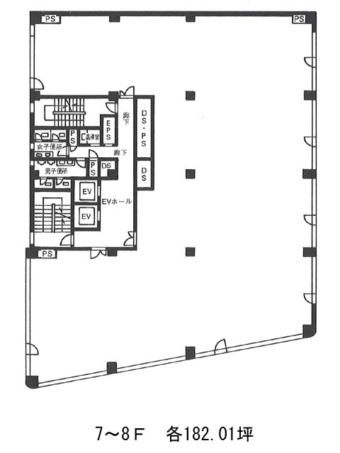
プラザANSのテナント募集中区画
| 階数 | 面積 | 賃料(共益費含む) | 保証金 | 入居可能日 | 検討リスト | 詳細 |
|---|---|---|---|---|---|---|
| 4 | 28.98坪 | 555,557円/月(19,170円/坪) | 545万円 | 即 |
…新着物件
アクセス
プラザANSの物件情報
プラザANS(中央区日本橋浜町)は浜町駅(A1番出口)から徒歩3分の賃貸オフィスです。プラザANSは浜町駅(A1番出口)の他に東日本橋駅(B1番出口)徒歩5分、馬喰横山駅(A3番出口)徒歩5分で利用も可能です。

