8階は現在募集がありません
1フロア募集区画あり

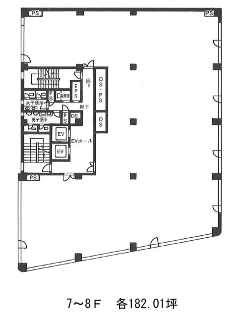
プラザANS 8階

前の写真 次の写真

物件概要

物件番号

657-00163-60

物件名

プラザANS

所在地

面積

182.01坪

賃料(共益費含)


入居日

募集終了

保証金

礼金

更新料

償却費

竣工

1987年5月

構造

SRC

規模

地上9階/地下1階

トイレ

男女別

空調

セントラル

エレベーター

セキュリティ

駐車場

耐震

新耐震基準

基準階天井高

2450mm

空室延床面積

28.98坪

最寄駅

情報更新日

2026/04/15

プラザANSのテナント募集中区画

階数 面積 賃料(共益費含む) 保証金 入居可能日 検討リスト 詳細
4 28.98坪 555,557円/月(19,170円/坪) 545万円
…新着物件

プラザANSのアクセス

プラザANSの物件情報

プラザANS(中央区日本橋浜町)は浜町駅(A1番出口)から徒歩3分の賃貸オフィスです。
プラザANSは浜町駅(A1番出口)の他に東日本橋駅(B1番出口)徒歩5分、馬喰横山駅(A3番出口)徒歩5分で利用も可能です。

近隣のエリア・駅から探す