3階は現在募集がありません
1フロア募集区画あり

花の東京ビル 3階

前の写真 次の写真

物件概要

物件番号

657-00081-20

物件名

花の東京ビル

所在地

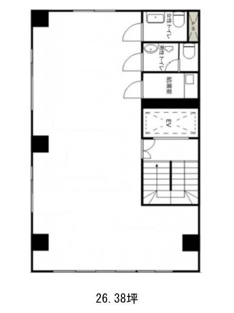
面積

26.38坪

賃料(共益費含)


入居日

募集終了

保証金

礼金

更新料

償却費

竣工

1973年11月

構造

RC

規模

地上8階

トイレ

男女別

空調

個別空調

エレベーター

セキュリティ

駐車場

耐震

旧耐震基準

基準階天井高

空室延床面積

26.38坪

最寄駅

情報更新日

2026/03/30

花の東京ビルのテナント募集中区画

階数 面積 賃料(共益費含む) 保証金 入居可能日 検討リスト 詳細
6 26.38坪 374,000円/月(14,179円/坪) 192万円
…新着物件

花の東京ビルのアクセス

花の東京ビルの物件情報

花の東京ビル(中央区日本橋浜町)は浜町駅(出口)から徒歩1分の賃貸オフィスです。
花の東京ビルは浜町駅(出口)の他に人形町駅(A1番出口)徒歩7分、東日本橋駅(B1番出口)徒歩8分で利用も可能です。

近隣のエリア・駅から探す