稲村ビルのテナント募集中区画
| 階数 | 面積 | 賃料(共益費含む) | 保証金 | 入居可能日 | 検討リスト | 詳細 |
|---|---|---|---|---|---|---|
| 7 | 93.31坪 | 応相談(応相談) | 応相談 | 即 |
…新着物件
アクセス
稲村ビルの物件情報
稲村ビル(中央区日本橋富沢町)は馬喰横山駅(A3番出口)から徒歩4分の賃貸オフィスです。赤レンガ調の外観がしっかりとした佇まい。角地に立地しており、通りからの視認性も良好です。最寄り駅からのアクセスも良く、周辺にはコンビニや飲食店が点在しているため、働く人にとっても使い勝手の良い環境です。
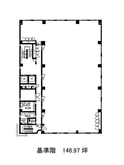
募集区画は1フロア最大約145坪(分割実績もあり)。執務室は整形かつ無柱空間のため、レイアウトの自由度が高く、部署ごとのゾーニングや会議室の設置もしやすい形状です。水回りは共用部に集約されており、執務スペースを効率的に活用可能。また、OAフロア・個別空調・機械警備・EV2基・駐車場と、スペック面も十分に整っており、中規模〜大規模のオフィスニーズにも対応できる仕様です。稲村ビルは馬喰横山駅(A3番出口)の他に東日本橋駅(B2番出口)徒歩4分、馬喰町駅(1番出口)徒歩6分で利用も可能です。

