7階 7Bは現在募集がありません
1フロア募集区画あり

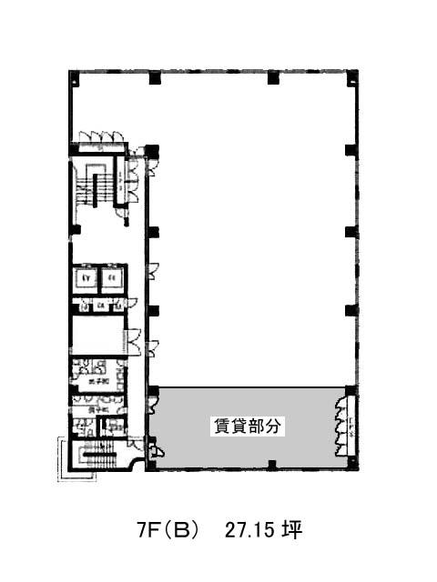
稲村ビル 7階 7B

前の写真 次の写真

物件概要

物件番号

658-00028-90

物件名

稲村ビル

所在地

面積

27.15坪

賃料(共益費含)


入居日

募集終了

保証金

礼金

更新料

償却費

竣工

1986年9月

構造

S造

規模

地上7階/地下1階

トイレ

男女別

空調

個別空調

エレベーター

セキュリティ

駐車場

耐震

新耐震基準

基準階天井高

2350mm

空室延床面積

93.31坪

最寄駅

情報更新日

2026/04/02

稲村ビルのテナント募集中区画

階数 面積 賃料(共益費含む) 保証金 入居可能日 検討リスト 詳細
7 93.31坪 応相談(応相談) 応相談
…新着物件

稲村ビルのアクセス

稲村ビルの物件情報

稲村ビル(中央区日本橋富沢町)は馬喰横山駅(A3番出口)から徒歩4分の賃貸オフィスです。
赤レンガ調の外観がしっかりとした佇まい。角地に立地しており、通りからの視認性も良好です。最寄り駅からのアクセスも良く、周辺にはコンビニや飲食店が点在しているため、働く人にとっても使い勝手の良い環境です。
募集区画は1フロア最大約145坪(分割実績もあり)。執務室は整形かつ無柱空間のため、レイアウトの自由度が高く、部署ごとのゾーニングや会議室の設置もしやすい形状です。水回りは共用部に集約されており、執務スペースを効率的に活用可能。また、OAフロア・個別空調・機械警備・EV2基・駐車場と、スペック面も十分に整っており、中規模〜大規模のオフィスニーズにも対応できる仕様です。
稲村ビルは馬喰横山駅(A3番出口)の他に東日本橋駅(B2番出口)徒歩4分、馬喰町駅(1番出口)徒歩6分で利用も可能です。

近隣のエリア・駅から探す