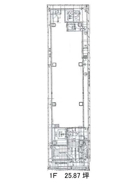
TWG日本橋イーストⅡのテナント募集中区画
| 階数 | 面積 | 賃料(共益費含む) | 保証金 | 入居可能日 | 検討リスト | 詳細 |
|---|---|---|---|---|---|---|
| 5 | 30.06坪 | 694,386円/月(23,100円/坪) | 378万円 | 即 | ||
| 6 | 30.06坪 | 694,386円/月(23,100円/坪) | 378万円 | 2026年4月上旬 | ||
| 9 | 30.06坪 | 694,386円/月(23,100円/坪) | 378万円 | 2026年4月上旬 |
…新着物件
アクセス
TWG日本橋イーストⅡの物件情報
TWG日本橋イーストⅡ(中央区日本橋富沢町)は馬喰横山駅(A3番出口)から徒歩4分の賃貸オフィスです。TWG日本橋イーストⅡは馬喰横山駅(A3番出口)の他に東日本橋駅(A4番出口)徒歩4分、馬喰町駅(1番出口)徒歩5分で利用も可能です。

