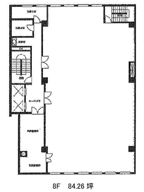
8階は現在募集がありません
田源ビル 8階
物件概要
田源ビルのテナント募集中区画
現在、空室がございません。
アクセス
田源ビルの物件情報
田源ビル(中央区日本橋堀留町)は小伝馬町駅(1番出口)から徒歩4分の賃貸オフィスです。織物中央通り沿いの角地に立地します。1974年築、地上9階地下1階建ビルです。壁面に「田源」と大きく表示がありご案内の際目印となるでしょう。低層階はブラウンのタイルで温かみのある印象。エントランスは吹抜けで広々ととています。EV2基・地下駐車場・男女別トイレがあり個別空調を導入しています。機械警備がありオフィスは24時間使用可能です。床は配線がしやすいOAフロアです。周囲にコンビニ・飲食店等あり普段使いご利用頂けるでしょう。田源ビルは小伝馬町駅(1番出口)の他に人形町駅(A4番出口)徒歩5分、馬喰横山駅(A3番出口)徒歩6分で利用も可能です。

