東海日本橋ビルのテナント募集中区画
| 階数 | 面積 | 賃料(共益費含む) | 保証金 | 入居可能日 | 検討リスト | 詳細 |
|---|---|---|---|---|---|---|
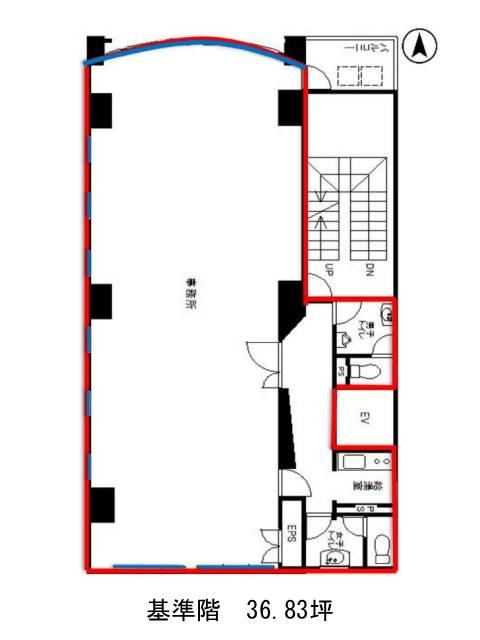
| 4 | 36.83坪 | 688,721円/月(18,700円/坪) | 309万円 | 2026年2月上旬 |
…新着物件
アクセス
東海日本橋ビルの物件情報
東海日本橋ビル(中央区日本橋本町)は新日本橋駅(4番出口)から徒歩3分の賃貸オフィスです。中央通りを東へ一本入ったところにある、地上8階・地下1階建てのビルです。ガラスカーテンウォールを曲線状に配し、デザイン性の高い外観です。主な間取りは37坪ほどの広さがあります。長方形の無柱空間とフリーアクセスの床で、レイアウトしやすくなっています。給湯室と男女別トイレは、共用部に設置されています。東海日本橋ビルは新日本橋駅(4番出口)の他に三越前駅(A10番出口)徒歩5分、神田駅(南口)徒歩5分で利用も可能です。

