日本橋蛎殻町東急ビル 2-3F新着
物件概要
物件番号
662-00016-81物件名
日本橋蛎殻町東急ビル所在地
- 東京都中央区日本橋蛎殻町1-29-4
- アクセスマップ
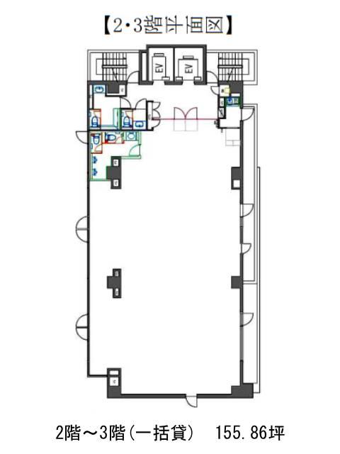
面積
155.86坪賃料(共益費含)
月額3,428,920円(22,000円/坪)
入居日
即保証金
18,703,200円礼金
1ケ月更新料
新1ケ月償却費
なし竣工
1988年12月構造
SRC規模
地上10階/地下1階トイレ
男女別空調
個別空調エレベーター
有セキュリティ
有駐車場
無耐震
新耐震基準基準階天井高
2400mm空室延床面積
155.86坪情報更新日
2026/03/06日本橋蛎殻町東急ビルのテナント募集中区画
| 階数 | 面積 | 賃料(共益費含む) | 保証金 | 入居可能日 | 検討リスト | 詳細 |
|---|---|---|---|---|---|---|
| 2-3F | 155.86坪 | 3,428,920円/月(22,000円/坪) | 1,870万円 | 即 |
…新着物件
日本橋蛎殻町東急ビルのアクセス
日本橋蛎殻町東急ビルの物件情報
日本橋蛎殻町東急ビル(中央区日本橋蛎殻町)は水天宮前駅(6番出口)から徒歩1分の賃貸オフィスです。新大橋通り沿いの角地に建つ、地上10階・地下1階建てのビルです。基準階は77.93坪の長方形の間取りです。床がフリーアクセスになっているので、すっきりとした配線が可能です。男女別トイレは共用部に設置されています。日本橋蠣殻町は、明治8年から昭和14年まで米穀取引所が置かれ、大阪の堂島とともに米相場の中心となって発展した町です。日本橋蛎殻町東急ビルは水天宮前駅(6番出口)の他に人形町駅(A2番出口)徒歩4分、茅場町駅(4A番出口)徒歩6分で利用も可能です。

