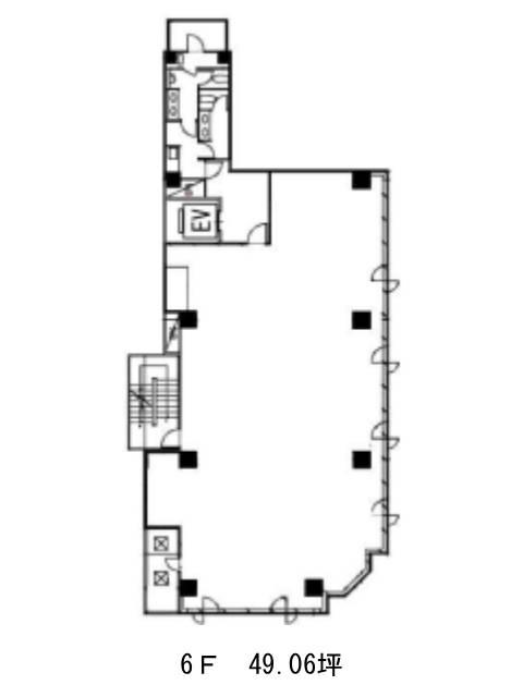
オーキッドプレイス蛎殻町ビル 6階
物件概要
物件番号
662-00022-50物件名
オーキッドプレイス蛎殻町ビル所在地
- 東京都中央区日本橋蛎殻町1-4-1
- アクセスマップ
面積
49.06坪賃料(共益費含)
月額863,456円(17,600円/坪)
入居日
2026年5月保証金
9,419,520円礼金
なし更新料
なし償却費
なし竣工
1993年3月構造
S造規模
地上8階/地下1階トイレ
男女別空調
個別空調エレベーター
有セキュリティ
有駐車場
無耐震
新耐震基準基準階天井高
2450mm空室延床面積
138.56坪情報更新日
2026/01/16オーキッドプレイス蛎殻町ビルのテナント募集中区画
| 階数 | 面積 | 賃料(共益費含む) | 保証金 | 入居可能日 | 検討リスト | 詳細 |
|---|---|---|---|---|---|---|
| 3 | 64.64坪 | 1,102,112円/月(17,050円/坪) | 400万円 | 即 | ||
| 6 | 49.06坪 | 863,456円/月(17,600円/坪) | 941万円 | 2026年5月 | ||
| 8 | 24.86坪 | 437,536円/月(17,600円/坪) | 159万円 | 即 |
…新着物件
アクセス
オーキッドプレイス蛎殻町ビルの物件情報
オーキッドプレイス蛎殻町ビル(中央区日本橋蛎殻町)は水天宮前駅(6番出口)から徒歩5分の賃貸オフィスです。1993年築地上8階地下1階建ビルです。とうかん堀通り沿いの角地に建ち、採光が期待できるでしょう。外観は白い壁面に、角の部分がウォールガラスでアクセントとなっています。テナントとして飲食店が入居している他、周囲にも飲食店が多く、食事の際もお楽しみ頂けるでしょう。設備としてEV1基・貸室外の男女別トイレ・個別空調・機械警備がありOAフロアを導入しています。オーキッドプレイス蛎殻町ビルは水天宮前駅(6番出口)の他に茅場町駅(4A番出口)徒歩5分、人形町駅(A2番出口)徒歩8分で利用も可能です。

