4階は現在募集がありません

中野セントラルパーク東棟 4階

前の写真 次の写真

物件概要

物件番号

682-00113-156

物件名

中野セントラルパーク東棟

所在地

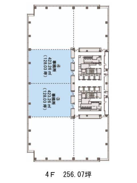
面積

256.07坪

賃料(共益費含)


入居日

募集終了

保証金

礼金

更新料

償却費

竣工

2012年3月

構造

S造

規模

地上10階/地下2階

トイレ

男女別

空調

個別空調

エレベーター

セキュリティ

駐車場

耐震

新耐震基準

基準階天井高

2900mm

空室延床面積

最寄駅

情報更新日

2024/07/05

中野セントラルパーク東棟のテナント募集中区画

現在、空室がございません。

アクセス

中野セントラルパーク東棟の物件情報

中野セントラルパーク東棟(中野区中野)は中野駅(北口)から徒歩6分の賃貸オフィスです。
駅近のため通勤も非常に楽で、ビル内にはコンビニ、近隣には郵便局、銀行、区役所と周辺環境は抜群です。また中野四季の森公園に隣接しており、気軽に仕事の合間のリフレッシュが可能な点も魅力的です。2012年竣工、地上10階・地下2階建ての鉄骨造で、外観はガラス張りで遠くからの視認性は良好です。主な設備としては、OAフロア、個別空調、エレベーターは8基設置と充実の設備です。基準階は約849坪と広く、天井高が2900mmと開放的で、貸室内はコの字型の無柱空間でレイアウトの自由度が高いです。

近隣のエリア・駅から探す