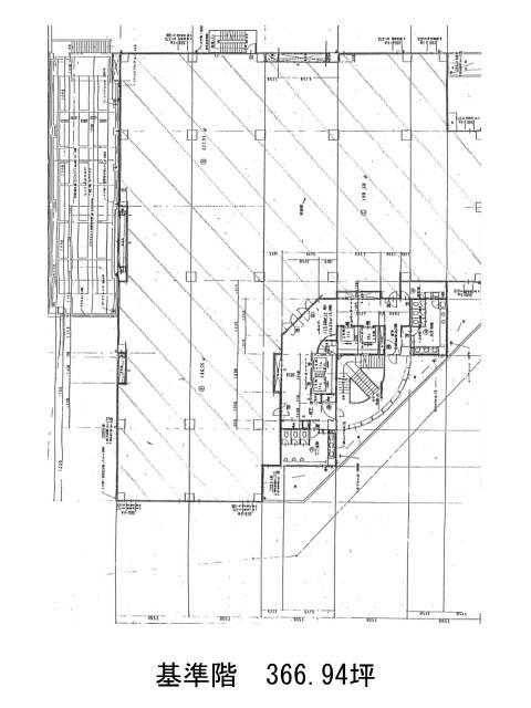
中野清水ビルのテナント募集中区画
| 階数 | 面積 | 賃料(共益費含む) | 保証金 | 入居可能日 | 検討リスト | 詳細 |
|---|---|---|---|---|---|---|
| 地下1 | 309.41坪 | 応相談(応相談) | 応相談 | 即 | ||
| 5 | 224.69坪 | 応相談(応相談) | 応相談 | 即 |
…新着物件
アクセス
中野清水ビルの物件情報
中野清水ビル(中野区本町)は中野富士見町駅(出口)から徒歩7分の賃貸オフィスです。中野清水ビルは中野富士見町駅(出口)の他に新中野駅(1番出口)徒歩7分、中野新橋駅(出口)徒歩8分で利用も可能です。

