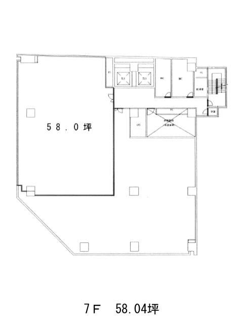
りそな五反田ビル 7階 A
物件概要
りそな五反田ビルのテナント募集中区画
| 階数 | 面積 | 賃料(共益費含む) | 保証金 | 入居可能日 | 検討リスト | 詳細 |
|---|---|---|---|---|---|---|
| 7 | 58.04坪 | 応相談(応相談) | 応相談 | 即 |
…新着物件
りそな五反田ビルのアクセス
りそな五反田ビルの物件情報
りそな五反田ビル(品川区西五反田)は大崎広小路駅(出口)から徒歩2分の賃貸オフィスです。りそな五反田ビルは大崎広小路駅(出口)の他に五反田駅(出口)徒歩4分、大崎駅(西口)徒歩9分で利用も可能です。

