五反田テックワンのテナント募集中区画
| 階数 | 面積 | 賃料(共益費含む) | 保証金 | 入居可能日 | 検討リスト | 詳細 |
|---|---|---|---|---|---|---|
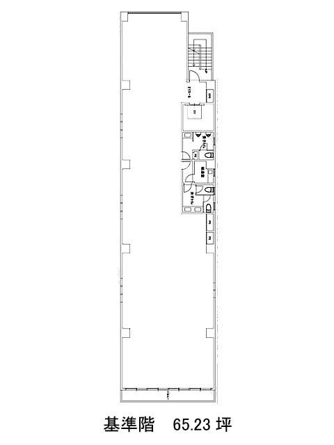
| 2 | 65.23坪 | 1,650,319円/月(25,300円/坪) | 900万円 | 即 | ||
| 3 | 65.23坪 | 1,650,319円/月(25,300円/坪) | 900万円 | 即 | ||
| 8 | 65.23坪 | 1,722,072円/月(26,400円/坪) | 939万円 | 即 |
…新着物件
アクセス
五反田テックワンの物件情報
五反田テックワン(品川区西五反田)は大崎広小路駅(出口)から徒歩7分の賃貸オフィスです。1988年竣工、地上9階建SRC造のビルです。明るいブラウンの外観で、温かみのある見た目をしています。間取りは長方形で支柱が中央に無く、配置がしやすいでしょう。EV1基・非常階段・給湯室・貸室外の男女別トイレ・個別空調といった設備仕様をしています。セキュリティとして安心の機械警備が導入されています。2017年にエントランスのリニューアルが済んでおり、築年数を感じさせない清潔感があります。屋上テラスにはテーブル・椅子が設置されリフレッシュスペースとしてご利用頂けるでしょう。五反田テックワンは大崎広小路駅(出口)の他に五反田駅(A2番出口)徒歩8分、不動前駅(出口)徒歩8分で利用も可能です。

