五反田テックワン 7階
物件概要
物件番号
754-00025-27物件名
五反田テックワン所在地
- 東京都品川区西五反田7-1-10
- アクセスマップ
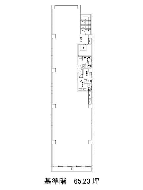
面積
65.23坪賃料(共益費含)
月額1,722,072円(26,400円/坪)
入居日
相談保証金
9,393,120円礼金
なし更新料
なし償却費
なし竣工
1988年12月構造
SRC規模
地上9階トイレ
男女別空調
個別空調エレベーター
有セキュリティ
有駐車場
有耐震
新耐震基準基準階天井高
空室延床面積
326.15坪情報更新日
2026/03/02五反田テックワンのテナント募集中区画
…新着物件
五反田テックワンのアクセス
五反田テックワンの物件情報
五反田テックワン(品川区西五反田)は大崎広小路駅(出口)から徒歩7分の賃貸オフィスです。1988年竣工、地上9階建SRC造のビルです。明るいブラウンの外観で、温かみのある見た目をしています。間取りは長方形で支柱が中央に無く、配置がしやすいでしょう。EV1基・非常階段・給湯室・貸室外の男女別トイレ・個別空調といった設備仕様をしています。セキュリティとして安心の機械警備が導入されています。2017年にエントランスのリニューアルが済んでおり、築年数を感じさせない清潔感があります。屋上テラスにはテーブル・椅子が設置されリフレッシュスペースとしてご利用頂けるでしょう。五反田テックワンは大崎広小路駅(出口)の他に五反田駅(A2番出口)徒歩8分、不動前駅(出口)徒歩8分で利用も可能です。

