五反田シティトラストビル 3階
物件概要
物件番号
754-00061-20物件名
五反田シティトラストビル所在地
- 東京都品川区西五反田1-23-7
- アクセスマップ
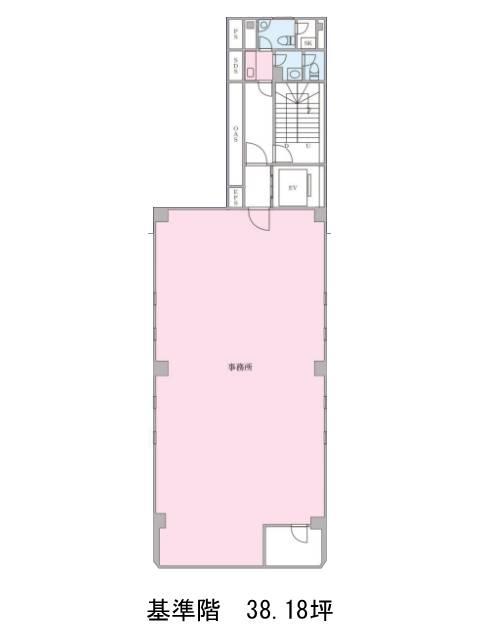
面積
38.18坪賃料(共益費含)
月額671,968円(17,600円/坪)
入居日
2025年12月上旬保証金
2,978,040円礼金
1ケ月更新料
新1ケ月償却費
2ケ月竣工
1986年3月構造
S造規模
地上9階トイレ
男女別空調
個別空調エレベーター
有セキュリティ
有駐車場
無耐震
新耐震基準基準階天井高
空室延床面積
76.36坪情報更新日
2025/09/01五反田シティトラストビルのテナント募集中区画
| 階数 | 面積 | 賃料(共益費含む) | 保証金 | 入居可能日 | 検討リスト | 詳細 |
|---|---|---|---|---|---|---|
| 3 | 38.18坪 | 671,968円/月(17,600円/坪) | 297万円 | 2025年12月上旬 | ||
| 4 | 38.18坪 | 629,970円/月(16,500円/坪) | 297万円 | 即 |
…新着物件
アクセス
五反田シティトラストビルの物件情報
五反田シティトラストビル(品川区西五反田)は大崎広小路駅(出口)から徒歩2分の賃貸オフィスです。五反田シティトラストビルは大崎広小路駅(出口)の他に五反田駅(出口)徒歩4分、大崎駅(西口)徒歩8分で利用も可能です。

