7階は現在募集がありません
2フロア募集区画あり

五反田シティトラストビル 7階

前の写真 次の写真

物件概要

物件番号

754-00061-50

物件名

五反田シティトラストビル

所在地

面積

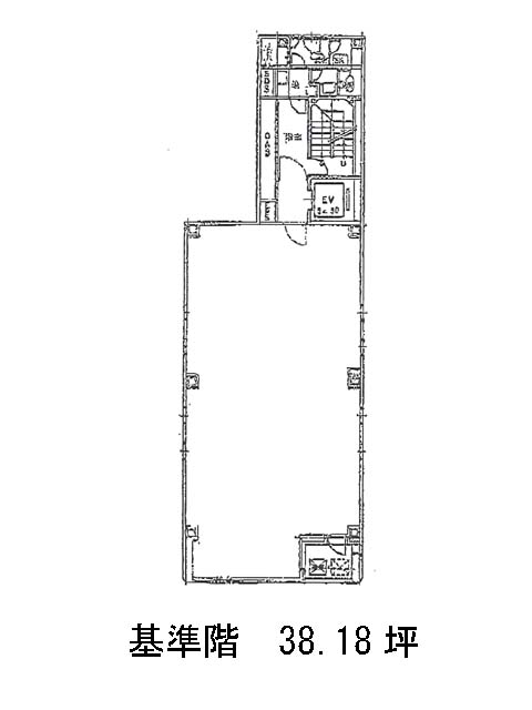
38.18坪

賃料(共益費含)


入居日

募集終了

保証金

礼金

更新料

償却費

竣工

1986年3月

構造

S造

規模

地上9階

トイレ

男女別

空調

個別空調

エレベーター

セキュリティ

駐車場

耐震

新耐震基準

基準階天井高

空室延床面積

75.70坪

最寄駅

情報更新日

2026/05/29

五反田シティトラストビルのテナント募集中区画

階数 面積 賃料(共益費含む) 保証金 入居可能日 検討リスト 詳細
2 37.52坪 784,168円/月(20,900円/坪) 382万円
3 38.18坪 797,962円/月(20,900円/坪) 389万円 2026年11月下旬
…新着物件

五反田シティトラストビルのアクセス

五反田シティトラストビルの物件情報

五反田シティトラストビル(品川区西五反田)は大崎広小路駅(出口)から徒歩2分の賃貸オフィスです。
五反田シティトラストビルは大崎広小路駅(出口)の他に五反田駅(出口)徒歩4分、大崎駅(西口)徒歩8分で利用も可能です。

近隣のエリア・駅から探す